Пакет «Планировки»
Кажется. — что сложного в том, чтобы расставить мебель в комнате?
Но как только погружаешься в вопрос, выясняется, что:
- «Упс…посудомойка не может стоять между стояком и раковиной!..»
- «Оу… Нарисованный диван оказалось не реально найти, так как моделей такого размера не производят.»
- «Кровать хотели разместить правее, чтобы в углу поставить шкаф, но электрики сделали розетки по центру… Остались без шкафа?»
- «В санузле не получается разместить душевую, унитаз и раковину так, чтобы не биться об углы и не ходить по мокрому.»
- «И вообще ты меня не слушаешь! Я хочу по-другому!» (ссора…)
И ещё десятки-десятки таких вот нюансов.
Сохранить свои нервы планируя жильё и не рассориться друг с другом поможет пакет «Планировки»

Этапы работ:
1
Первая встреча или созвон с заказчиком
2
Заключение договора и выезд
дизайнера на замеры
(возможна работа на обмерах от заказчика)
3
Составление технического задания
4
Подготовка планировочного решения


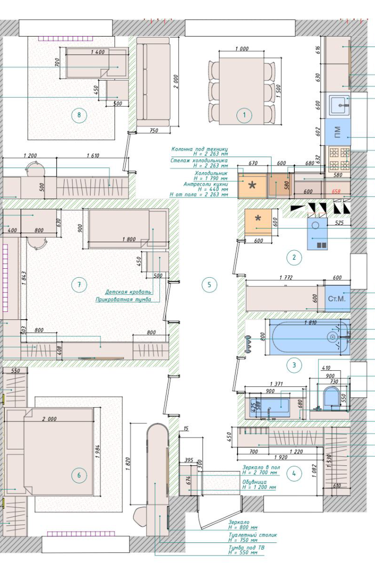
В этом пакете Вы получаете:
- Общая концепция размещения комнат в квартире или доме
- Планировочное решение пространства (2-3 варианта плана расстановки мебели и сантехнического оборудования)
- План демонтируемых конструкций (при необходимости)
- План возводимых конструкций (при необходимости)
- План квартиры после перепланировки с экспликацией помещений
При удалённом варианте работы мы созваниваемся несколько раз для проработки каждого из помещений.

Стоимость пакета
от 300 до 500 руб/кв.м
и зависит от сложности проекта, количества правок и размера помещения.
Для уточнения деталей и точного расчёта стоимости работ — свяжитесь со мной, пожалуйста.
tel. +7-(993)-771-06-26
Telegram @wish_design_ru
Max +7-(993)-771-06-26
