Дизайн-проект
(Полный и типовой)
Это самый доскональный и тщательный вариант работы, в результате которого Вы получаете реалистичные визуализации и исчерпывающий пакет чертежей для дальнейшей работы по ремонту вашего будущего жилья.
А также планы развёрток стен. Эти планы очень любят строители, так как каждая стена проекта на этих чертежах расписана по пунктам:
- Покрытие стен
- Расположение розеток и выключателей с точностью до милиметра
- Количество материала (объем краски или плитки)
- Расположение корпусной мебели
- и пр.


Этапы дизайн проекта
1
Первая встреча или созвон с заказчиком
Мы встречаемся на удобной территории за вкусным кофе и обсуждаем будущий интерьер, пожелания и мечты.
2
Заключение договора и выезд
дизайнера на замеры
Мы подписываем договор и сопутствующие документы.
Я направляю анкету технического задания для ознакомления и в назначенное согласованное время выезжаю на объект для замеров.
3
Составление технического задания
Вы заполняете самостоятельно или вместе со мной техническое задание проекта.Я провожу анализ и уточнение заполненного технического задания и закрепляю договорённости.
Цель этих трёх этапов — прийти к общему пониманию концепции будущего интерьера:
- Познакомиться
- Обсудить пожелания заказчика
- Выявить важные нюансы жилья и его эргономик
- Закрепить цветовые и стилистические пожелания хозяев
4
Подготовка первых чертежей

Подготовка планировочного решения
На этом этапе Вы получаете:
- Общая концепция расстановки мебели и комнат
- Доработка выбранной концепции до планировочного решения.
- Планировочное решение пространства (2-3 варианта плана расстановки мебели и сантехнического оборудования)
- План демонтируемых конструкций (при необходимости)
- План возводимых конструкций (при необходимости)
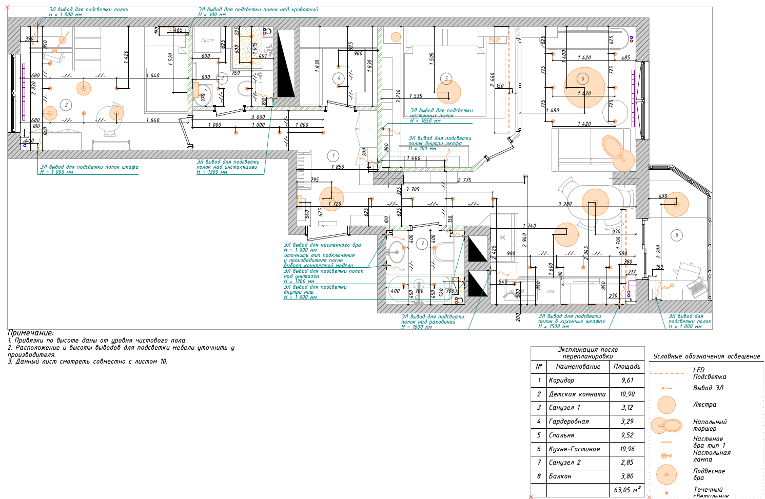
- План квартиры после перепланировки с экспликацией помещений
5
Коллажи
- Выбор стиля с помощью подборки фотографий и визуализаций в желаемом стиле.
- Подбор предметов мебели и элементов декора для каждой комнаты




6
Визуализации
Второй по трудоёмкости этап после чертежей. Но результат позволяет увидеть будущее жилье так, словно оно уже отремонтировано и существует.
На этом этапе Вы получаете:
- Фотореалистичные 3D-изображения интерьера на основе плана расстановки мебели и согласованного технического задания.
- До 4 ракурсов на 1 комнату



7
Рабочая документация
Самая объёмная, важная и полезная часть дизайн-проекта.
Это чертежи, которые позволят сэкономить бюджет на планировании ремонта.
Так, например, часто материалы закупаются с чрезмерным излишком, либо наоборот, не закладывается запас, что приводит к дополнительным закупкам.
Например, планы электрики дадут понимание не только того, где будут располагаться розетки и выключатели. Но и какое количество электромеханизмов нужно закупить, как будет включаться и выключаться свет, сколько будет сценариев освещения, какие розетки нужно сделать влагостойкими. И множество других вопросов.
И в целом чертежи — это тот инструмент, который очень любят строители. Это порядок, чёткость и прозрачность работ и результата.



На этом этапе Вы получаете:
- План дверей и кондиционеров
- План сантехники со спецификацией
- План потолков с указанием высотных отметок и площадей
- План расстановки осветительного оборудования со спецификацией;
- План привязки выключателей и схемы освещения
- План электрики со спецификацией эелектромеханизмов
- План напольных покрытий со спецификацией
- План тёплых полов со спецификацией
- Планы плинтусов и карнизов со спецификацией
- План отделки стен со спецификацией
- Развертки стен по помещениям


Стоимость пакета
от 2 500 до 3 000 руб/кв.м
Скачать pdf пример полного Дизайн-проекта с ЯндексДиска
Для уточнения деталей и точного расчёта стоимости работ
свяжитесь со мной, пожалуйста.
tel. +7-(993)-771-06-26
Telegram @wish_design_ru
Max +7-(993)-771-06-26
