Пакет «Чертежи»
Рабочая документация — самая объёмная, важная и полезная часть дизайн-проекта.
Это чертежи, которые позволят сэкономить бюджет на планировании ремонта.
Так, например, часто материалы закупаются с чрезмерным излишком, либо наоборот, не закладывается запас, что приводит к дополнительным закупкам.
Например, планы электрики дадут понимание не только того, где будут располагаться розетки и выключатели. Но и какое количество электромеханизмов нужно закупить, как будет включаться и выключаться свет, сколько будет сценариев освещения, какие розетки нужно сделать влагостойкими. И множество других вопросов.
И в целом чертежи — это тот инструмент, который очень любят строители. Это порядок, чёткость и прозрачность работ и результата.
На этом этапе Вы получаете:
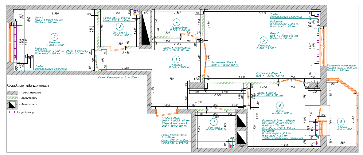
- План дверей и кондиционеров
- План сантехники со спецификацией
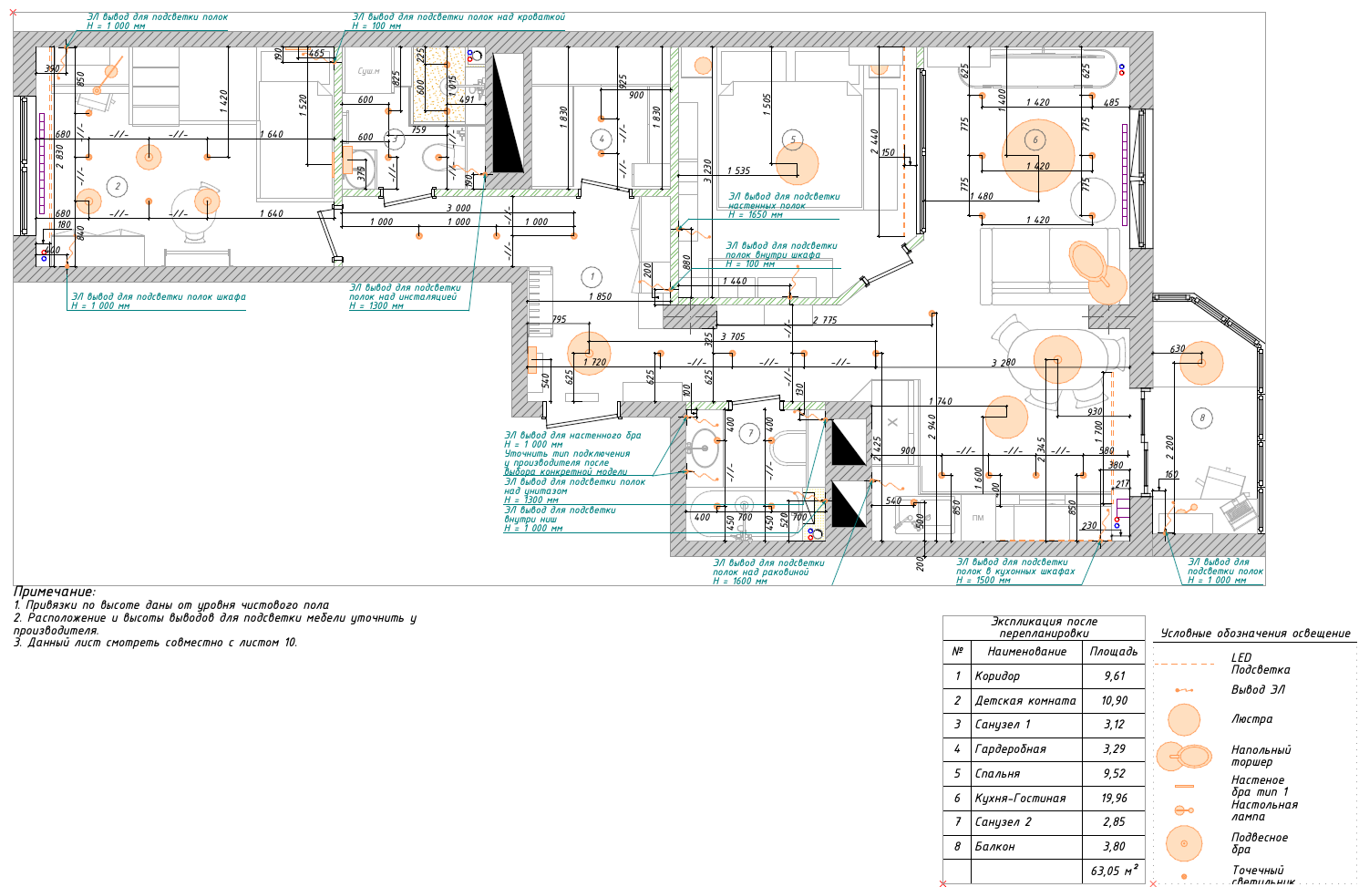
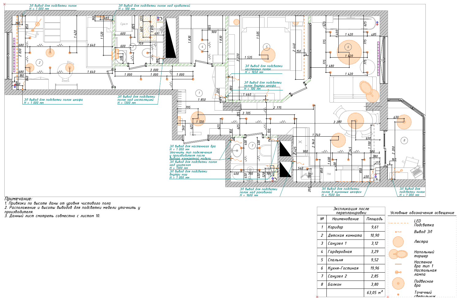
- План потолков с указанием высотных отметок и площадей
- План расстановки осветительного оборудования со спецификацией;
- План привязки выключателей и схемы освещения
- План электрики со спецификацией эелектромеханизмов
- План напольных покрытий со спецификацией
- План тёплых полов со спецификацией
- Планы плинтусов и карнизов со спецификацией
- План отделки стен со спецификацией
Также отдельно можно заказать
Развёртки
Это подробнейшие чертежи по каждой из стен.
Их очень любят строители и ремонтные бригады, так как на них указаны:
- Материал отделки стен
- Обьём материалов, необходимый для отделки именно этой стены
- Расположение электрики
- Расположение труб
- Кораусная мебель и материал за ней
- Размеры и расположение дверей, окон и коммуникаций

Стоимость пакета
от 1 000 до 1 500 руб/кв.м
Для уточнения деталей и точного расчёта стоимости работ
свяжитесь со мной, пожалуйста.
tel. +7-(993)-771-06-26
Telegram @wish_design_ru
Max +7-(993)-771-06-26




